Whatsapp Facebook LinkedIn Instagram RSS feed

Herstructurering Poelzone Noord Westland

NIEUWS
Facebook Linkedin Whatsapp
vrijdag 16 september 2016
41 sec


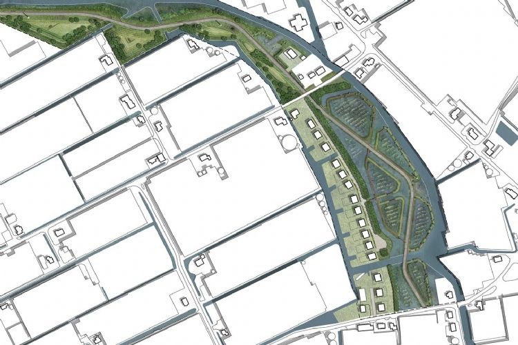
Het project Poelzone behelst 21 hectare natuur als recreatieve en ecologische verbinding dwars door de kassenbouw in Westland voor zowel mens als dier. Het gebied veranderde de afgelopen jaren naar een modern glastuinbouwgebied, met veel ruimte voor groen en water.

De Poelzone is een belangrijke vliegroute voor vleermuizen. In het gebied vind je daarom een brug met veel voorzieningen voor vleermuizen. Het 25 meter lange bouwwerk bevat kraamkamers, maar ook zomer- en winterverblijven voor de dieren. In Poelzone vind je daarnaast ook de grootste vispaaiplaats van Nederland, een plek vol vijvers waar vissen kunnen paaien en het broed veilig op kan groeien. Andere dieren kunnen terecht in de 'beestenbomen' en vogels kunnen schuilen in de rietkragen. De grote blikvanger is de brede watergang, waar fiets- en wandelpaden langs liggen. Vanaf de kust naar Midden-Delfland is een nieuw regionaal fietspad van 4 m breed aangelegd. Onder de N211, naast Westlandse Druif, is een fiets- en voetgangerstunnel aangelegd die hier deel van uitmaakt. Via deze fietstunnel is het mogelijk om door het groen vanuit Naaldwijk en 's-Gravenzande naar het strand te fietsen.

Naam opdrachtgever: Gemeente Westland
Contactgegevens opdrachtgever: Gemeentekantoor Naaldwijk, Stokdijkkade 2, 2671 GW Naaldwijk

Naam architect: LOLA landschapsarchitecten
Contactgegevens architect: Eendrachtsweg 71, 3012 LG Rotterdam




LOGIN   met je e-mailadres om te reageren.

REACTIES
Er zijn nog geen reacties.

tip de redactie

Meld je aan voor onze digitale nieuwsbrief.

ONDERDELEN
Archief
Dossiers
Green Industry Profile
Webshop
OVER ONS
Over ons
Duurzaamheid & NWST
Contact
Het team
ADVERTEREN EN ABONNEREN
Fysiek abonnement
Digitaal abonnement
Abonneren nieuwsbrief
Adverteren
Verschijningsdata
MEER
Redactionele spelregels
Algemene voorwaarden
Disclaimer
Privacy
Cookies
ONDERDELEN
OVER ONS
ADVERTEREN EN ABONNEREN
MEER